2-Bedroom Ranch House Plan — 1,400 Sq Ft (Plan 1400)
by American Design Gallery|2 bedroom Ranch w/ Hearth room and walk-in pantry

Plan 1400 is a versatile 1,400 sq. ft. Ranch-style home that offers both charm and practicality. This single-story design includes two well-appointed bedrooms and two bathrooms, making it an ideal choice for small families or couples looking to downsize without sacrificing comfort. The open floor plan features vaulted ceilings that create a sense of spaciousness, while a cozy fireplace adds warmth and ambiance to the living area. A bay window provides a picturesque view and enhances natural light throughout the home. The inviting covered porch extends the living space outdoors, perfect for relaxing or entertaining. Additional features such as a walk-in pantry and plant shelves add convenience and style. With its thoughtful design and attractive curb appeal, this home offers excellent value and a welcoming environment for any homeowner.
Read full description →Features
- ●Vaulted Ceilings
- ●Plant Shelves
- ●Bay Window
- ●Covered Porch
- ●Walk-In Closet
- ●Fireplace
- ●Walk-In Pantry
Key Highlights
- ●1,400 sq. ft. Ranch-style home
- ●2 spacious bedrooms, 2 full bathrooms
- ●Open floor plan with vaulted ceilings
- ●Cozy fireplace and bay window
- ●Inviting covered porch
- ●Convenient walk-in pantry
Floor Plan

Copyright 2026 ADG, Inc.
Elevation

Loading...
Will this plan fit your lot?
Enter your lot dimensions to see if Plan #1400 (50' × 44') fits
Try the Lot Analysis Tool →Have a question about this plan?
Ask about modifications, pricing, or anything else about Plan #1400
Send an Enquiry →Unlimited Licensing
- ✓Print as many copies as you need
- ✓Have changes made by your local draftsman
- ✓Share with your builder, engineer, and permitting office
- ✓Build the plan as many times as you want
- ✓One-time purchase, no recurring fees
Details
Heated Area
1400 sq. ft
Roof
Truss 6/12 main pitch 8/12 front pitch
Walls
Truss or TJI
Ceilings
Vaulted - Living, Dining, Kitchen, Hearth & MBR
Basement
Approx. 1240 sq. ft View-out (rear)
Opt'l Finish
Rec room 2 Bedrooms Full Bath
Masonry
Approx. 312 sq. ft Front only (includes front offsets)
Kitchen
Approx. 11' x 10' Base cabs L=17' Upper cabs L=15'
Misc
Csmt windows Gas-log Fireplace
Similar Plans
- Plan #12002 bedroom Ranch w/covered patio — 1200 sq ft
- Plan #12063 bedroom, 2 bath narrow lot Ranch — 1206 sq ft
- Plan #12083 bedroom, 2 bath narrow lot Ranch — 1208 sq ft
About Plan #1400
Exterior and Curb Appeal
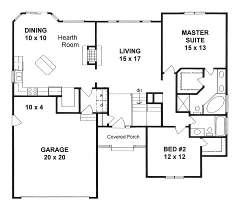
This charming Ranch-style home, plan number 1400, boasts a beautifully designed exterior that combines both traditional and modern elements. The front elevation is adorned with tasteful masonry, which adds a touch of elegance and sophistication. A covered porch welcomes you to the entrance, providing a perfect spot for enjoying the outdoors or greeting guests. The roof, featuring a truss system with a 6/12 main pitch and an 8/12 front pitch, adds architectural interest and complements the overall design. The home's width of 50 feet and depth of 44 feet provide a balanced and appealing façade that fits seamlessly into a variety of settings.
Main Level Layout
Inside, the 1,400 square feet of heated living space is thoughtfully arranged to maximize both functionality and comfort. The open concept design allows for seamless flow between the living, dining, and kitchen areas, making it an ideal space for entertaining or family gatherings. Vaulted ceilings in these main areas enhance the sense of space and light, creating an inviting atmosphere. The living area is centered around a cozy fireplace, perfect for relaxing evenings or social gatherings. A bay window not only provides a beautiful view but also floods the room with natural light, enhancing the welcoming feel of the home.
Bedroom and Bathroom Arrangement
The home features two generously sized bedrooms, each designed to offer privacy and comfort. The master suite, measuring 15 by 13 feet, serves as a private retreat for homeowners, complete with its own well-appointed bathroom. This suite is designed with a vaulted ceiling, adding to the sense of space and luxury. The second bedroom, measuring 12 by 12 feet, offers ample closet space and easy access to the second full bathroom, making it ideal for guests or family members. Both bathrooms are designed with functionality in mind, offering convenience and ease of use for all residents.
Notable Features and Amenities
This home is equipped with several features that enhance both its practicality and aesthetic appeal. The kitchen, measuring approximately 11 by 10 feet, includes a walk-in pantry, providing ample storage space for groceries and kitchen essentials. Plant shelves throughout the home offer a unique opportunity for personalization and décor, allowing homeowners to showcase their style. The hearth room adjacent to the dining area provides additional space for relaxation or entertainment. Overall, the thoughtful design and attention to detail make this home a standout choice for those seeking a blend of comfort, style, and functionality.