3-Bedroom 2-Story House Plan — 1,656 Sq Ft (Plan 1656)
by American Design Gallery|2 Story 3 Bed 2 1/2 Bath 3-Car garage

Plan 1656 offers a well-designed 2-story home spanning 1,656 square feet, ideal for modern family living. This house includes three spacious bedrooms and two and a half bathrooms. The exterior boasts a charming covered porch, complemented by a distinctive bay window, enhancing both curb appeal and interior light. Inside, the main level features a seamless flow between the living area, dining room, and a well-equipped kitchen. Notable interior features include vaulted ceilings and a cozy gas-log fireplace, creating a warm and inviting atmosphere. The upper level is dedicated to restful retreats, highlighted by a master suite with a vaulted ceiling and walk-in closet. Two additional bedrooms provide ample space, each with large closets for storage. A full basement offers additional space for recreation or storage, while the thoughtful layout ensures functionality and comfort. Perfect for families or those who love to entertain, this plan combines style and practicality, making it a versatile choice for homeowners.
Read full description →Features
- ●Vaulted Ceilings
- ●Large Closet
- ●Bay Window
- ●Covered Porch
- ●Walk-In Closet
- ●Fireplace
- ●9' Ceilings
Key Highlights
- ●3 bedrooms, 2.5 bathrooms
- ●1,656 sq ft of living space
- ●Vaulted master suite with walk-in closet
- ●Covered porch and bay window
- ●Gas-log fireplace in living area
- ●Full basement with optional rec room
Floor Plans
First Floor

Second Floor

Copyright 2026 ADG, Inc.
Elevation

Loading...
Will this plan fit your lot?
Enter your lot dimensions to see if Plan #1656 (38' × 40') fits
Try the Lot Analysis Tool →Have a question about this plan?
Ask about modifications, pricing, or anything else about Plan #1656
Send an Enquiry →Unlimited Licensing
- ✓Print as many copies as you need
- ✓Have changes made by your local draftsman
- ✓Share with your builder, engineer, and permitting office
- ✓Build the plan as many times as you want
- ✓One-time purchase, no recurring fees
Details
Heated Area
680 main fl 976 upper fl 1656 sq. ft total
Roof
8/12 Pitch Truss
Floor
T.J.I.
Walls
8' & 9' plates
Ceilings
9' main floor 8' upper floor Vaulted Master Suite
Basement
Approx. 558 sq. ft Full Basement
Opt'l Finish
Rec room 3/4 Bath
Masonry
Approx. 84 sq. ft Front only (includes front offset)
Kitchen
Approx. 10' x 12' Base cabs L=18' Upper cabs L=18' 60" Pantry
Misc
Csmt windows Gas-log Fireplace
Similar Plans
No Similar Plans have been added
About Plan #1656
Exterior and Curb Appeal
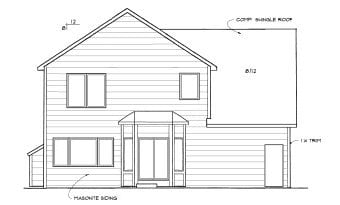
Plan 1656 is designed to impress with its elegant exterior and thoughtful architectural details. The facade combines horizontal siding with masonry accents, creating a timeless and inviting look. The covered porch at the entrance not only adds charm but also offers a space for outdoor relaxation. A bay window enhances the front elevation, providing both aesthetic appeal and additional natural light to the home's interior. The roof, constructed with an 8/12 pitch and truss system, adds to the home's architectural interest and durability.
Main Level Layout
The main level of this home is thoughtfully arranged to maximize space and functionality. As you enter, you are welcomed into a spacious living area featuring a cozy gas-log fireplace, perfect for creating a warm and inviting atmosphere. The open-concept design allows for a seamless flow into the dining area and kitchen. The kitchen is well-appointed, approximately 10' x 12', with ample cabinetry and a 60" pantry, ensuring plenty of storage for all your culinary needs. Nine-foot ceilings on this level enhance the sense of openness and light, making it an ideal space for entertaining or family gatherings.
Bedroom and Bathroom Arrangement
The upper level is dedicated to the home's private quarters, providing a comfortable retreat for family members. The master suite is a standout feature, offering a vaulted ceiling and a spacious walk-in closet for storage convenience. The attached master bathroom adds a touch of luxury and privacy. Two additional bedrooms on this level are generously sized, each with ample closet space. These bedrooms share a well-appointed bathroom, ensuring comfort and functionality for family members or guests.
Notable Features
This house plan includes several notable features designed to enhance modern living. The full basement, approximately 558 square feet, offers opportunities for additional storage or optional recreational space, complete with a 3/4 bath. The use of T.J.I. floor systems ensures structural integrity and durability, while large closets throughout the home provide ample storage solutions. Additional features include vaulted ceilings in the master suite and a gas-log fireplace in the living area, adding comfort and style. With its thoughtful design and versatile layout, Plan 1656 is an excellent choice for those seeking a blend of style, comfort, and functionality.