3-Bedroom 2 Story House Plan — 2,042 Sq Ft (Plan 2042)
by American Design Gallery|3 bedroom 2-Story home w/ cat-walk Foyer

This elegant two-story house plan offers a spacious 2042 square feet of living space, thoughtfully designed to accommodate a modern lifestyle. With three bedrooms and two and a half bathrooms, the home provides ample room for family and guests. The charming exterior features a blend of masonry accents and classic design elements, enhanced by a welcoming covered porch. Inside, the main level includes a formal living room with a bay window, a cozy family room with a fireplace, and a well-appointed kitchen, complete with a pantry and abundant cabinetry. Upstairs, the master suite is a true retreat, featuring coffered ceilings, a walk-in closet, and a luxurious en-suite bathroom. Two additional bedrooms share a well-appointed bathroom, ensuring comfort for everyone. Notable features include a window seat, a truss roof with a 12/12 pitch, and an optional finished basement. This versatile plan is perfect for those seeking both style and functionality in their home.
Read full description →Features
- ●Window Seat
- ●Bay Window
- ●Covered Porch
- ●Walk-In Closet
- ●Fireplace
Key Highlights
- ●2042 sq ft, 2-story home
- ●3 bedrooms, 2.5 bathrooms
- ●Inviting covered porch
- ●Fireplace in family room
- ●Master suite with walk-in closet
- ●Optional finished basement
Floor Plans
First Floor

Second Floor

Copyright 2026 ADG, Inc.
Loading...
Will this plan fit your lot?
Enter your lot dimensions to see if Plan #2042 (60' × 28') fits
Try the Lot Analysis Tool →Have a question about this plan?
Ask about modifications, pricing, or anything else about Plan #2042
Send an Enquiry →Unlimited Licensing
- ✓Print as many copies as you need
- ✓Have changes made by your local draftsman
- ✓Share with your builder, engineer, and permitting office
- ✓Build the plan as many times as you want
- ✓One-time purchase, no recurring fees
Details
Heated Area
2042 sq. ft 1016 main fl 1026 upper fl
Roof
Truss 12/12 pitch
Floor
Joist or TJI
Walls
8' plates L=142' main fl L=140' upper fl (insulated)
Ceilings
Vaulted - Foyer Coffer - MBR
Basement
Approx. 923 sq. ft Full Basement
Opt'l Finish
Rec room 1 Bedroom 3/4 Bath
Masonry
Approx. 518 sq. ft Front only (Includes front offset)
Kitchen
Approx. 11' x 13' Base cabs L=20' Upper cabs L=16' 18" Pantry
Misc
Csmt windows W/B Fireplace
Similar Plans
No Similar Plans have been added
About Plan #2042
Charming Exterior and Curb Appeal
The exterior of this 2042 square foot, two-story house plan is a harmonious blend of classic and contemporary design elements. The front facade showcases approximately 518 square feet of masonry work, providing an elegant and timeless appeal. The covered porch offers a warm welcome to guests, creating an inviting first impression. The roof, with its truss design and 12/12 pitch, adds architectural interest and enhances the home's overall aesthetic. The beautifully landscaped front yard, complemented by a bay window, enhances the curb appeal and sets the stage for the beauty within.
Main Level Layout
Stepping inside, the main level is designed to maximize space and comfort. The foyer greets you with vaulted ceilings, creating an open and airy atmosphere. To the left, the formal living room features a charming bay window, flooding the space with natural light. Adjacent to the living room is the dining area, measuring 11 by 10 feet, perfect for intimate family dinners or larger gatherings. The heart of the home is the family room, which spans 15 by 17 feet and includes a cozy fireplace, ideal for relaxing evenings. The family room flows seamlessly into the kitchen nook, which measures 8 by 13 feet. The kitchen itself is a chef's delight, equipped with 20 feet of base cabinets, an 18-inch pantry, and 16 feet of upper cabinets, providing ample storage and workspace.
Bedroom and Bathroom Arrangement
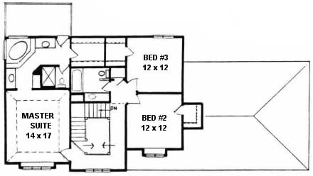
The upper level of the home is dedicated to rest and relaxation, housing three well-appointed bedrooms. The master suite, measuring 14 by 17 feet, is a luxurious retreat featuring coffered ceilings that add an elegant touch. The suite includes a spacious walk-in closet and a private bathroom with modern amenities, ensuring a serene escape from daily life. The two additional bedrooms, each measuring 12 by 12 feet, are thoughtfully designed to offer comfort and privacy. A shared bathroom serves these bedrooms, featuring all the necessities for family convenience.
Notable Features and Optional Spaces
This house plan includes several notable features that enhance its functionality and charm. A window seat adds a cozy reading nook or a spot to enjoy the view. The optional finished basement provides approximately 923 square feet of additional space, offering potential for a recreation room, an extra bedroom, and a three-quarter bath. This flexibility makes the home adaptable to various needs, whether it's for entertaining, accommodating guests, or creating a personal retreat. The thoughtful layout and design details make this home a perfect blend of style and practicality.