2-Bedroom Ranch House Plan — 1,852 Sq Ft (Plan 1852)
by American Design Gallery|2 Master Suites or 3 bedroom Ranch

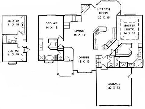
Discover the elegance and functionality of this 1852 sq. ft. Ranch-style house plan, thoughtfully designed for modern living. This single-story home features 2 spacious bedrooms and 2.5 bathrooms, offering ample comfort for families or couples. The full brick exterior exudes timeless charm and durability, complemented by a welcoming covered porch perfect for relaxation. Inside, you'll find 10' ceilings throughout the main living areas, enhancing the sense of space and openness. The floor plan includes a generous living room, dining area, and a cozy hearth room complete with a gas-log fireplace. The well-equipped kitchen boasts extensive cabinetry and a 24" pantry, ideal for culinary enthusiasts. The master suite serves as a private retreat with a coffered ceiling, walk-in closet, and luxurious en-suite bathroom. Additionally, the home offers a view-out basement with the option to add a recreation room, two extra bedrooms, and a full bath, providing flexibility and room for growth. This plan combines style and practicality, making it an excellent choice for various lifestyles.
Read full description →Features
- ●Bay Window
- ●Covered Porch
- ●Walk-In Closet
- ●Fireplace
- ●10' Ceilings
Key Highlights
- ●1852 sq. ft. Ranch-style home
- ●2 bedrooms, 2.5 bathrooms
- ●Full brick exterior with covered porch
- ●10' ceilings in main living areas
- ●Optional finished basement for extra space
Floor Plan

Copyright 2026 ADG, Inc.
Loading...
Will this plan fit your lot?
Enter your lot dimensions to see if Plan #1852 (58' × 60') fits
Try the Lot Analysis Tool →Have a question about this plan?
Ask about modifications, pricing, or anything else about Plan #1852
Send an Enquiry →Unlimited Licensing
- ✓Print as many copies as you need
- ✓Have changes made by your local draftsman
- ✓Share with your builder, engineer, and permitting office
- ✓Build the plan as many times as you want
- ✓One-time purchase, no recurring fees
Details
Heated Area
1852 sq. ft
Roof
Truss 8/12 pitch
Floor
Truss or TJI
Walls
8' & 10' plates L=198' (insulated)
Ceilings
10'- Living, Dining, Kitchen & Hearth Room Coffer - MBR
Basement
Approx. 1721 sq. ft View-out
Opt'l Finish
Rec room 2 Bedrooms Full Bath
Masonry
Approx. 2012 sq. ft Full Brick House
Kitchen
Approx. 13' x 12' Base cabs L=22' Upper cabs L=20' 24" Pantry
Misc
Csmt windows Gas-log Fireplace
Similar Plans
- Plan #16723 bedroom Ranch w/ angled walls and 3-Car Garage — 1672 sq ft
- Plan #16783 bedroom Ranch w/ lots of bay windows and 2-Car Garage — 1678 sq ft
- Plan #16833 bedroom Ranch w/ Bonus room above oversized 2-Car Garage — 1683 sq ft
About Plan #1852
Exterior and Curb Appeal
This Ranch-style house plan boasts a full brick exterior, offering both aesthetic appeal and structural integrity. The welcoming covered porch adds to the charming curb appeal, providing a perfect spot for enjoying the outdoors in any weather. The architectural design is enhanced by a distinctive bay window, which not only adds to the exterior's charm but also allows natural light to flood the interior.
Main Level Layout
The main level of this 1852 sq. ft. home is designed for both comfort and style. The open-concept layout features a spacious living room, dining area, and a hearth room, all with soaring 10' ceilings that create an airy and inviting atmosphere. The living area centers around a cozy gas-log fireplace, adding warmth and ambiance. The adjacent kitchen is a culinary dream, boasting approximately 13' x 12' of space with extensive cabinetry, including a 24" pantry for ample storage.
Bedroom and Bathroom Arrangement
This plan includes two well-appointed bedrooms. The master suite is a luxurious retreat featuring a coffered ceiling, a generous walk-in closet, and an en-suite bathroom fitted with high-end fixtures. The second bedroom offers comfort and convenience, located near the additional full bathroom. A strategically placed half-bath is available for guests, ensuring privacy and comfort for residents and visitors alike.
Notable Features
Among the home's standout features are its structural and design elements. The view-out basement, encompassing approximately 1721 sq. ft., provides the option to add a recreation room, two additional bedrooms, and a full bath. This flexibility allows homeowners to expand their living space as needed. The construction includes insulated exterior walls, promoting energy efficiency and comfort throughout the year. Additionally, the 8/12 pitch truss roof adds to the home's durability and aesthetic appeal.
Additional Considerations
While this plan does not include a garage, its functional layout and optional basement finishing make it adaptable to various needs. The absence of garage spaces can be a perfect fit for those who prefer utilizing alternative storage solutions or maximizing interior living spaces. The full brick construction ensures low maintenance and longevity, making it a wise investment for homeowners.