3-Bedroom Bi-Level House Plan — 1,225 Sq Ft (Plan 1225)
by American Design Gallery|3 bedroom Quad level home

Introducing Plan 1225, a thoughtfully designed Bi-Level house plan that offers 1,225 square feet of comfortable living space. This home features three bedrooms and two bathrooms, making it an ideal choice for families seeking a balance of style and functionality. The exterior presents a classic appeal with its masonry front and optional covered wood deck, perfect for outdoor relaxation. Inside, the vaulted ceilings in the living and dining areas create a spacious and open atmosphere, complemented by a cozy fireplace. The kitchen is efficiently designed with ample cabinetry, while the master suite provides a private retreat with a large closet. Additional features include plant shelves for decorative touches and optional recreational space for added versatility. With its efficient layout and charming features, Plan 1225 combines practicality with aesthetic appeal, making it a perfect choice for modern living.
Read full description →Features
- ●Vaulted Ceilings
- ●Plant Shelves
- ●Large Closet
- ●Covered Porch
- ●Fireplace
- ●2 Car Garage
Key Highlights
- ●3 bedrooms, 2 bathrooms
- ●1,225 sq ft Bi-Level design
- ●Vaulted ceilings and cozy fireplace
- ●Optional recreation room for versatility
- ●Classic masonry front with optional deck
Floor Plans
First Floor

Second Floor

Copyright 2026 ADG, Inc.
Loading...
Will this plan fit your lot?
Enter your lot dimensions to see if Plan #1225 (44' × 26') fits
Try the Lot Analysis Tool →Have a question about this plan?
Ask about modifications, pricing, or anything else about Plan #1225
Send an Enquiry →Unlimited Licensing
- ✓Print as many copies as you need
- ✓Have changes made by your local draftsman
- ✓Share with your builder, engineer, and permitting office
- ✓Build the plan as many times as you want
- ✓One-time purchase, no recurring fees
Details
Heated Area
1225 sq. ft
Roof
Truss 6/12 main pitch 14/12 front pitch
Floor
Truss
Walls
8' plates L=290' (insulated)
Basement
Vaulted - Living, Dining & Kitchen
Opt'l Finish
Rec room
Masonry
Approx. 184 sq. ft Front only (includes front offsets)
Kitchen
Approx. 9' x 9' Base cabs L=16' Upper cabs L=19'
Misc
Csmt windows W/B Fireplace NOTES: 1. Plans indicate (opt'l) 1/2-bath in Mud room. 2. 18' x 8' Covered wood deck (opt'l)
Similar Plans
- Plan #1058Bi-level starter home — 1058 sq ft
- Plan #1198Quad level home — 1198 sq ft
- Plan #12303 bedroom most popular Bi-level home — 1230 sq ft
About Plan #1225
Exterior and Curb Appeal
The exterior of Plan 1225 captures attention with its Bi-Level design and classic masonry front, covering approximately 184 square feet. This striking façade, combined with the optional 18' x 8' covered wood deck, creates an inviting entrance that is both functional and aesthetically pleasing. The deck offers a perfect spot for outdoor gatherings or a quiet evening under the stars, enhancing the home's entertainment potential.
Main Level Layout
Stepping inside, the main level is designed to maximize space and comfort. The open-concept living area features vaulted ceilings that contribute to a light and airy atmosphere. The living room, measuring 18' x 14', is centered around a cozy fireplace, ideal for family gatherings or relaxing evenings. Adjacent to the living room is the dining area, sized at 9' x 10', which flows seamlessly into the well-appointed kitchen. The kitchen boasts approximately 9' x 9' of space, equipped with substantial base and upper cabinetry, ensuring ample storage for kitchen essentials.
Bedroom and Bathroom Arrangement
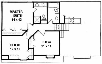
The thoughtful layout continues with three generously sized bedrooms. The master suite, at 14' x 12', offers a private sanctuary complete with a large closet and en-suite bathroom. The additional two bedrooms, measuring 12' x 10' and 11' x 11', are strategically placed to share a conveniently located second bathroom. Large closets in each room provide additional storage, catering to the needs of a growing family.
Notable Features
Plan 1225 is rich with features that enhance both form and function. The vaulted ceilings and plant shelves add character and charm to the home's interior. An optional recreation room provides flexibility, allowing the space to be tailored to specific needs such as a home office, gym, or play area. The home is constructed with 8-foot insulated exterior walls, promoting energy efficiency and comfort throughout the seasons. Additionally, the fireplace in the living room adds warmth and ambiance, making it a welcoming hub of the home.
Overall, Plan 1225 offers a harmonious blend of style, comfort, and practicality. Its efficient use of space and versatile design make it an ideal choice for those seeking a home that accommodates both everyday living and special occasions. Whether entertaining guests on the optional deck or enjoying the cozy interior, this home provides a welcoming environment for all.