3-Bedroom Ranch House Plan — 1,280 Sq Ft (Plan 1280)
by American Design Gallery|3 bedroom Bi-level w/ Bay windows and 3 Car Garage

Embrace the comfort and functionality of this charming Ranch-style home, offering 1280 square feet of well-designed living space. With three bedrooms and two bathrooms, this single-story layout is perfect for families or individuals seeking a cozy yet spacious environment. As you enter, the covered porch sets a welcoming tone, leading into an open-concept living area where vaulted ceilings enhance the sense of space. The living room, dining area, and kitchen flow seamlessly together, providing an ideal setup for entertaining or everyday living. Notable features such as plant shelves and a bay window add character and charm, while the master suite offers a private retreat complete with a walk-in closet. The home also includes a full view-out basement, adding potential for future expansion with options for a recreation room, two additional bedrooms, and a full bath. This plan combines practicality with style, making it a versatile choice for a wide range of homeowners.
Read full description →Features
- ●Vaulted Ceilings
- ●Plant Shelves
- ●Bay Window
- ●Covered Porch
- ●Walk-In Closet
Key Highlights
- ●3 bedrooms, 2 bathrooms
- ●Ranch-style single-story layout
- ●Vaulted ceilings for spacious feel
- ●Charming bay window and plant shelves
- ●Full view-out basement for expansion
Floor Plan

Copyright 2026 ADG, Inc.
Elevation

Loading...
Will this plan fit your lot?
Enter your lot dimensions to see if Plan #1280 (58' × 42') fits
Try the Lot Analysis Tool →Have a question about this plan?
Ask about modifications, pricing, or anything else about Plan #1280
Send an Enquiry →Unlimited Licensing
- ✓Print as many copies as you need
- ✓Have changes made by your local draftsman
- ✓Share with your builder, engineer, and permitting office
- ✓Build the plan as many times as you want
- ✓One-time purchase, no recurring fees
Details
Heated Area
1280 sq. ft
Roof
Truss 6/12 main pitch 8/12 front pitch
Floor
Truss or TJI
Walls
8' plates L=170' (insulated)
Ceilings
Vaulted - Living, Dining & Kitchen Tray - MBR
Basement
Approx. 1160 sq. ft Full view-out
Opt'l Finish
Rec room 2 Bedrooms Full Bath
Masonry
Approx. 358 sq. ft Front only (includes front offsets)
Kitchen
Approx. 12' x 9' Base cabs L=19' Upper cabs L=15'
Misc
Csmt windows W/B Fireplace
Similar Plans
- Plan #1091Small house plan with Great room — 1091 sq ft
- Plan #1103Ranch style small house plan w/ Bay windows — 1103 sq ft
- Plan #1108Ranch with 3 (split) bedrooms and 2 baths — 1108 sq ft
About Plan #1280
Exterior and Curb Appeal
This Ranch-style home boasts a classic and inviting exterior that blends seamlessly into various neighborhood settings. The covered porch provides a warm welcome, perfect for enjoying quiet mornings or greeting guests. The front masonry, covering approximately 358 square feet, adds an elegant touch while ensuring durability. With an overall width of 58 feet and a depth of 42 feet, the home offers a balanced presence that fits a variety of lot sizes.
Main Level Layout
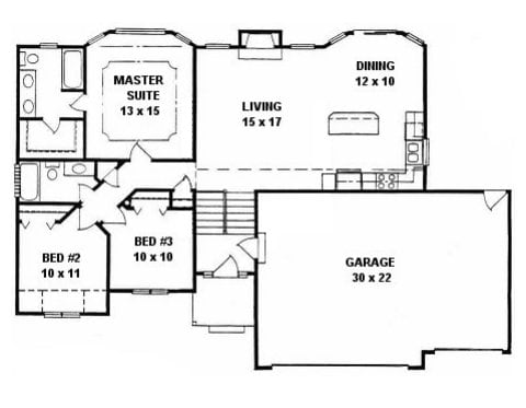
Upon entering the home, you're greeted by an open-concept design that maximizes its 1280 square feet. The vaulted ceilings in the living, dining, and kitchen areas create an airy and expansive atmosphere. The living room is centrally located, serving as the heart of the home, while the adjacent dining area offers easy access to the kitchen. The kitchen itself, approximately 12 by 9 feet, is efficiently designed with ample cabinet space, including 19 feet of base cabinets and 15 feet of upper cabinets, ensuring all your storage needs are met.
Bedroom and Bathroom Arrangement
This home includes three well-proportioned bedrooms. The master suite, measuring 13 by 15 feet, is a true retreat, featuring a tray ceiling and a generously sized walk-in closet. The master bathroom provides a comfortable space for relaxation. Two additional bedrooms, each 10 by 10 feet, are perfect for family members or guests and share a conveniently located full bathroom. The thoughtful layout ensures privacy and comfort for all occupants.
Notable Features
Among the standout features of this home are the charming plant shelves and bay window, which add character and a touch of elegance to the living spaces. The full view-out basement offers approximately 1160 square feet of potential, allowing for future expansion. Options include creating a recreation room, two additional bedrooms, and a full bath, making this home adaptable to your changing needs. The structural integrity is supported by truss or TJI flooring, 8-foot insulated exterior walls, and a well-designed roof with a main pitch of 6/12 and a front pitch of 8/12. This thoughtful design ensures both comfort and energy efficiency throughout the home.