3-Bedroom Duplex House Plan — 2,572 Sq Ft (Plan 2572)
by American Design Gallery|3 bedroom duplex with 3 car garages

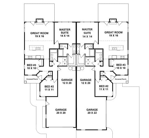
This spacious duplex house plan spans 2,572 square feet, offering two units with 3 bedrooms and 2 bathrooms each. Designed with modern living in mind, each unit features a vaulted-ceiling great room complete with a gas-log fireplace. The well-appointed kitchen includes a 9-foot open bar, perfect for entertaining. The master suite provides a private retreat, featuring a generous walk-in closet and a bathroom with a 60" x 42" tub/shower combo. The exterior boasts approximately 285 square feet of masonry, enhancing curb appeal. Each unit is complemented by a covered porch, offering a cozy outdoor space for relaxation. With a width of 68 feet and depth of 73 feet, this plan is designed for efficiency and comfort, making it an ideal choice for families seeking a blend of style and functionality in a single-story layout.
Read full description →Features
- ●Vaulted Ceilings
- ●Large Closet
- ●Covered Porch
- ●Walk-In Closet
- ●Fireplace
- ●9' Ceilings
Key Highlights
- ●2,572 sq ft total, 1,286 per unit
- ●3 bedrooms and 2 bathrooms per unit
- ●Vaulted ceilings in key areas
- ●Gas-log fireplace in great room
- ●Spacious walk-in closet in master suite
- ●Covered porch for outdoor living
Floor Plan

Copyright 2026 ADG, Inc.
Elevation

Loading...
Will this plan fit your lot?
Enter your lot dimensions to see if Plan #2572 (68' × 73') fits
Try the Lot Analysis Tool →Have a question about this plan?
Ask about modifications, pricing, or anything else about Plan #2572
Send an Enquiry →Unlimited Licensing
- ✓Print as many copies as you need
- ✓Have changes made by your local draftsman
- ✓Share with your builder, engineer, and permitting office
- ✓Build the plan as many times as you want
- ✓One-time purchase, no recurring fees
Details
Heated Area
2572 sq ft 1286 each unit
Roof
Truss 6/12 pitch
Floor
Slab on grade
Walls
8' plates L=306' (insulated, including party wall)
Ceilings
Vaulted - Living, Dining, Kitchen & MBR
Basement
none
Opt'l Finish
N/A
Masonry
Approx. 285 sq. ft Front & offsets only
Kitchen
Approx. 13' x 8' Base cabs L=17' Upper cabs L=11' 9' open Bar
Misc
Safe Room MBR closet 60" x 42" tub/shower combo. 24" Pantry Cabinet Gas-log Fireplace
Similar Plans
- Plan #24863 bedroom duplex with safe room — 2486 sq ft
- Plan #26162-story duplex plan — 2616 sq ft
About Plan #2572
Exterior and Curb Appeal
The exterior of this duplex plan is thoughtfully designed to create a welcoming and attractive appearance. With a width of 68 feet and a depth of 73 feet, the structure is both expansive and efficient. The front facade is enhanced by approximately 285 square feet of masonry, adding a touch of sophistication and durability. Each unit is equipped with a covered porch, perfect for enjoying the outdoors or greeting guests. The roof features a 6/12 pitch, offering a classic look that complements the home's overall design.
Main Level Layout
The main level of each unit is designed to maximize functionality while maintaining a sense of openness. The great room serves as the centerpiece, featuring vaulted ceilings that create an airy atmosphere. At 19 by 16 feet, it provides ample space for relaxation and entertainment, complete with a cozy gas-log fireplace. Adjacent to the great room is the kitchen, which measures approximately 13 by 8 feet. It includes a 9-foot open bar, base cabinets measuring 17 feet, and upper cabinets totaling 11 feet, ensuring plenty of storage and workspace.
Bedroom and Bathroom Arrangement
Each unit includes three bedrooms and two bathrooms, each thoughtfully designed for comfort and privacy. The master suite, measuring 14 by 14 feet, is a private retreat featuring vaulted ceilings and a spacious walk-in closet. The attached bathroom includes a 60" x 42" tub/shower combo, providing both luxury and convenience. Two additional bedrooms, each 11 by 10 feet, share a well-appointed bathroom, making the layout ideal for families or guests.
Notable Features
This duplex plan is packed with features that enhance livability and comfort. Vaulted ceilings in the living, dining, kitchen, and master bedroom areas contribute to the spacious feel. The slab on grade construction ensures durability and easy maintenance. Additional features include a 24" pantry cabinet in the kitchen and a safe room located within the master bedroom closet, providing added security. The design seamlessly combines style and functionality, making it a perfect choice for modern families.