2-Bedroom Bi-Level House Plan — 1,270 Sq Ft (Plan 1270)
by American Design Gallery|Bi-level home w/ Bay windows and 3 Car Garage

Plan 1270 is a thoughtfully designed Bi-Level home offering 1270 square feet of comfortable living space. Featuring two bedrooms and two bathrooms, this two-story residence is perfect for those seeking a blend of style and functionality. The exterior boasts a charming covered porch, creating a welcoming entry point. Inside, the living area is enhanced by vaulted ceilings and a warm fireplace, providing an open and inviting atmosphere. The kitchen is efficiently laid out with ample cabinetry and a convenient pantry. The master suite, with its bay window, offers a peaceful retreat complete with a private bath and walk-in closet. A second bedroom provides additional space for family or guests, while the optional basement finish allows for future expansion with a recreation room and extra bedrooms. This home’s thoughtful layout and appealing features make it an ideal choice for modern living.
Read full description →Features
- ●Vaulted Ceilings
- ●Plant Shelves
- ●Bay Window
- ●Covered Porch
- ●Walk-In Closet
- ●Fireplace
Key Highlights
- ●Bi-Level, 1270 sq ft design
- ●2 bedrooms, 2 bathrooms
- ●Vaulted ceilings and fireplace
- ●Bay window in master suite
- ●Covered porch entry
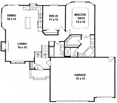
Floor Plan

Copyright 2026 ADG, Inc.
Loading...
Will this plan fit your lot?
Enter your lot dimensions to see if Plan #1270 (56' × 50') fits
Try the Lot Analysis Tool →Have a question about this plan?
Ask about modifications, pricing, or anything else about Plan #1270
Send an Enquiry →Unlimited Licensing
- ✓Print as many copies as you need
- ✓Have changes made by your local draftsman
- ✓Share with your builder, engineer, and permitting office
- ✓Build the plan as many times as you want
- ✓One-time purchase, no recurring fees
Details
Heated Area
1270 sq. ft
Roof
Truss 6/12 main pitch 8/12 front pitch
Floor
Truss or TJI
Walls
8' plates L=160' (insulated)
Ceilings
Vaulted - Living, Dining & Kitchen Tray - MBR
Basement
Approx. 1160 sq. ft Full View-out
Opt'l Finish
Rec room 2 Bedrooms Full Bath
Masonry
Approx. 288 sq. ft Front only (includes front offsets)
Kitchen
Approx. 10' x 12' Base cabs L=19' Upper cabs L=15' 12" Pantry
Misc
Csmt windows W/B Fireplace
Similar Plans
- Plan #1198Quad level home — 1198 sq ft
- Plan #12253 bedroom Quad level home — 1225 sq ft
- Plan #12303 bedroom most popular Bi-level home — 1230 sq ft
About Plan #1270
Exterior and Curb Appeal
The Bi-Level house plan 1270 presents a distinctive exterior that combines functionality with aesthetic appeal. The covered porch not only enhances the home's curb appeal but also provides a cozy spot to enjoy the outdoors. The facade is accentuated with masonry work on the front, adding a touch of elegance and durability. The home's width of 56 feet and depth of 50 feet offer a balanced footprint that fits well into various lot sizes.
Main Level Layout
Upon entering, the home's well-planned layout is immediately apparent. The living area, characterized by soaring vaulted ceilings, creates an open and airy environment. A fireplace serves as the focal point, adding warmth and comfort to the space. The living room seamlessly transitions into the dining area, making it ideal for entertaining or family gatherings. The kitchen, conveniently located adjacent to the dining area, features an efficient design with base cabinets totaling 19 feet and upper cabinets of 15 feet, ensuring ample storage. A 12-inch pantry offers additional space for kitchen essentials.
Bedroom and Bathroom Arrangement
This home includes two thoughtfully arranged bedrooms. The master suite is a highlight, featuring a bay window that fills the room with natural light and provides a cozy nook for relaxation. The suite includes a private bathroom and a spacious walk-in closet, offering both luxury and convenience. The second bedroom is situated near the main bathroom, making it perfect for guests or family members. Both bathrooms are designed to maximize space and functionality.
Notable Features
Plan 1270 is rich in features that enhance livability and style. The vaulted ceilings in the living, dining, and kitchen areas create a sense of spaciousness and elegance. Plant shelves offer decorative opportunities, allowing homeowners to personalize their space. The fireplace in the living room adds both warmth and a focal point for gatherings. The optional basement finish is a significant advantage, providing the potential for a recreation room and additional bedrooms, increasing the home's versatility. With approximately 1160 square feet of full view-out basement space, the possibilities for customization are extensive.